


一、产品[隔膜阀]的详细资料:
产品型号:EG41W
产品名称:无衬里隔膜阀
产品特点:设计与制造:BS5156 结构长度:5156 法兰连接尺寸:BS4504、DIN2532、JIS B2212、ANSI B16.1、ISO2004 EG41W无衬里隔膜阀,EG41J衬胶堰式隔膜阀,堰式隔膜阀
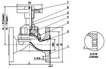
部件列表:1.阀体 2.阀体衬里 3.隔膜 4.阀瓣 5.阀杆 6.阀盖 7.手轮
二、用途:
本阀专用于控制非腐蚀性或一般腐蚀性介质,阀体内腔表面无衬里或覆有可供选择的各种橡胶、适用于不同工作温度和液体管路。
适用温度:≤85℃、≤100℃、≤120℃、≤150℃
压力等级:PN(MPa) 0.6 1.0 1.6
三、材料:
阀体:铸铁、球墨铸铁、碳钢、不锈钢
阀盖:铸铁、球墨铸铁、碳钢、不锈钢
衬里:无衬里、橡胶
隔膜:橡胶
阀瓣:铸铁
阀杆:碳钢、不锈钢
手轮:铸铁
四、测试:
衬里层:电火花检测
试验与检验按BS6755标准
公称压力:PN(MPa)
阀体:PN×1.5 密封:PN×1.1
五、结构特点:
隔膜阀是一种特殊形式的截断阀: 1、弹性密封的开闭件,确保没有内漏;
2、流线型的流道,使得压力损失小;
3、没有填料函,因此没有外漏;
4、阀体与盖被中间隔膜隔开,使得隔膜上方的阀盖,阀杆等零件不受介质侵蚀;
5、隔膜可更换,维护费用低;
6、衬里材料的多样性,可适用于各种介质,并具有强度高、耐腐蚀性能好的特点。
六、EG41W无衬里隔膜阀主要连接尺寸:
|
公称通径 |
公称压力 |
工作压力 |
L |
D |
D1 |
n-Фd |
f |
H1 |
H2 |
D0 |
质量 |
|
15 |
1.6 |
1.6 |
108 |
95 |
65 |
4-14 |
2 |
90 |
99 |
66 |
2 |
|
20 |
117 |
105 |
75 |
4-14 |
2 |
93 |
103 |
66 |
3 | ||
|
25 |
127 |
115 |
85 |
4-14 |
2 |
100 |
112 |
66 |
4 | ||
|
32 |
146 |
140 |
100 |
4-18 |
2 |
127 |
144 |
96 |
6.5 | ||
|
40 |
159 |
150 |
110 |
4-18 |
2 |
136 |
56 |
96 |
7.5 | ||
|
50 |
190 |
165 |
125 |
4-18 |
2 |
151 |
177 |
96 |
10 | ||
|
65 |
1.0 |
1.0 |
216 |
185 |
145 |
4-18 |
2 |
183 |
213 |
165 |
16 |
|
80 |
254 |
200 |
160 |
8-18 |
2 |
190 |
230 |
230 |
23.5 | ||
|
100 |
305 |
220 |
180 |
8-18 |
2 |
242 |
285 |
280 |
34 | ||
|
125 |
356 |
250 |
210 |
8-18 |
3 |
285 |
648 |
280 |
44 | ||
|
150 |
406 |
285 |
240 |
8-22 |
3 |
353 |
431 |
368 |
67.5 | ||
|
200 |
0.6 |
521 |
340 |
295 |
8-22 |
3 |
445 |
537 |
483 |
141.5 | |
|
250 |
635 |
395 |
350 |
12-22 |
5 |
598 |
734 |
500 |
229 | ||
|
300 |
0.4 |
749 |
445 |
400 |
12-22 |
5 |
698 |
778 |
560 |
321 | |
|
350 |
787 |
505 |
460 |
16-22 |
5 |
723 |
883 |
560 |
360 | ||
|
400 |
0.25 |
914 |
565 |
515 |
16-26 |
5 |
868 |
1078 |
640 |
584 |
订货须知:
一、①EG41W无衬里隔膜阀产品名称与型号②EG41W无衬里隔膜阀口径③EG41W无衬里隔膜阀是否带附件以便我们的为您正确选型。
二、若已经由设计单位选定的EG41W无衬里隔膜阀型号,请按EG41W无衬里隔膜阀型号直接向我司销售部订购。
三、当使用的场合非常重要或环境比较复杂时,请您尽量提供设计图纸和详细参数,由我们的专家为您审核把关。
感谢您访问我们的网站,如有任何疑问.您可以致电给我们,我们一定会尽心尽力为您提供优质的服务。